Zpět Zpět na výpis nemovitostí

Prodej bytu 3+1 77 m², Český Krumlov-Nové Spolí

Český Krumlov Zobrazit na mapě Zobrazit na mapě

Stav

Prodáno

Typ

3+1

Obytná plocha

77 m2

Stav objektu

Velmi dobrý

Stavba

Cihlová

Vlastnictví

Osobní

4 100 000 Kč

Pohlídejte si cenu této nemovitosti Pohlídejte si cenu této nemovitosti

Sledovat dostupnost

Upozornění

Pohlídejte si změny u této nemovitosti

Dáme vám vědět, ať už se změní cena nebo stav nemovitosti.

Upozornění

O vaše data je u nás postaráno. Přečtěte si naše podmínky pro ochranu os. údajů.

Kalkulačka financování Kalkulačka financování

Spočítejte si, na kolik vás vyjde hypotéka

Spočítejte si, na kolik vás vyjde hypotéka

Spočítejte si, na kolik vás vyjde hypotéka

Nějaký zajímavý podnadpis

Více o této nemovitosti

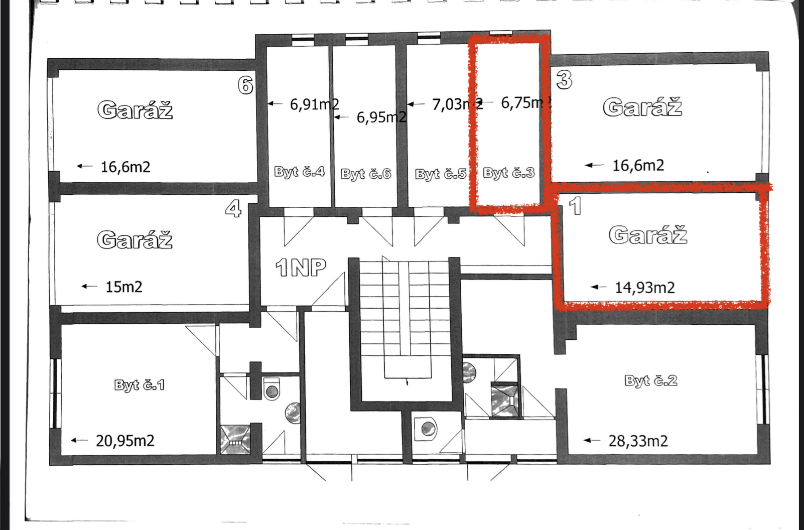
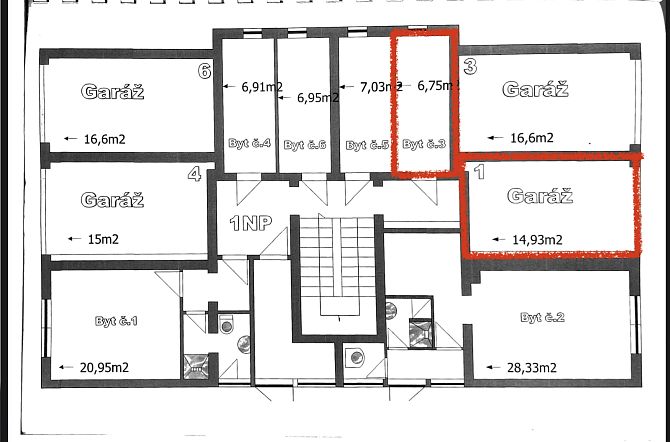
Nabízíme k prodeji zděný byt 3+1 (77,4m2) vč. GARÁŽE v osobním vlastnictví v klidné části Českého Krumlova - Nové Spolí s orientací na JV. Byt se nachází v malém moderním bytovém domě, ve kterém je celkem 6 bytových jednotek a 4 garáže. Bytová jednotka se nachází v 1.patře (celkem 2) a se sousedy na patře má společnou pouze jednu stěnu. Dle prohlášení vlastníka k bytu náleží sklep v přízemí o výměře 6,75m2, garáž o výměře 14,93m2 a podíl na společných prostorách půdy o výměře 190m2. Obývací pokoj s kuchyní jsou prosvětleny díky velkým oknům s výhledem na řeku. Ložnice a pokoj jsou na zadní straně domu s pohledem do svahu. Koupelna je vybavena vanou a sprchovým koutem - toaleta je samostatná. Dům se nachází nedaleko historického centra města - cca 1 km, přitom ale v klidné lokalitě vhodné pro bydlení. V pěší dostupnosti jsou potraviny, ZŠ, MŠ, lokální restaurace, atd. ...a zároveň je také blízko do přírody. Bytový dům je zateplený a má plastová okna a byt je financovatelný hypotéčním úvěrem, se kterým Vám rádi pomůžeme. Neváhejte nás kontaktovat. Pro komunikaci uvádějte evidenční číslo zakázky N101583.

Lokalita

Ulice

Informace o nemovitosti

Stav

Prodáno

Typ smlouvy

Prodej

Typ nemovitosti

Byty

Technické informace

Obytná plocha

77 m2

Příslušenství

Garáž

Ano

Další informace

Typ

3+1

Stav objektu

Velmi dobrý

Stavba

Cihlová

Vlastnictví

Osobní

Energetická náročnost budovy

G - Mimořádně nehospodárná

Sklep

Ano

Navigovat k nemovitosti Navigovat k nemovitosti

Máte zájem o tuto nemovitost?

Kontaktujte mě a domluvme se na prohlídce

firmy.cz
4.5
Hodnocení
google.cz
Hodnocení
Chyba: You must enable Billing on the Google Cloud Project at https://console.cloud.google.com/project/_/billing/enable Learn more at https://developers.google.com/maps/gmp-get-started

Dejte nám vědět, s čím vám můžeme pomoct

Osobně s vámi projdeme každý detail

Preferovaný den prohlídky

Preferovaný čas prohlídky

Nejpozději do 24 hodin se ozveme nazpátek.

O vaše data je u nás postaráno. Přečtěte si naše podmínky pro ochranu os. údajů.

Děkujeme za váš zájem

Vaše informace jsme přijali a brzy se vám ozveme.

Váš požadavek byl úspěšně odeslán

Dejte nám vědět, s čím vám můžeme pomoct

Osobně s vámi projdeme každý detail

firmy.cz
4.5
Hodnocení
google.cz
Hodnocení
Chyba: You must enable Billing on the Google Cloud Project at https://console.cloud.google.com/project/_/billing/enable Learn more at https://developers.google.com/maps/gmp-get-started

Podobné nemovitosti v naší nabídce

Mohlo by vás také zaujmout

Prodáno
Detail nemovitosti

Prodej bytu 2+1 49 m², Sídliště Plešivec, Český Krumlov-Plešivec

Ulice Sídliště Plešivec, Český Krumlov

3 159 000 Kč
Prodáno
Detail nemovitosti

Prodej bytu 3+1 73 m², Sídliště Plešivec, Český Krumlov-Plešivec

Ulice Sídliště Plešivec, Český Krumlov

4 069 000 Kč
Prodáno
Detail nemovitosti
Prodáno
Detail nemovitosti
Prodáno
Detail nemovitosti

Prodej bytu 3+1 61 m², Špičák, Český Krumlov-Latrán

Ulice Špičák, Český Krumlov

3 100 000 Kč
Prodáno
Detail nemovitosti

Prodej bytu 3+1 72 m², Urbinská, Český Krumlov-Domoradice

Ulice Urbinská, Český Krumlov

3 835 000 Kč
Prodáno
Detail nemovitosti
Prodáno
Detail nemovitosti

Prodej bytu 1+1 50 m², Sídliště Plešivec, Český Krumlov-Plešivec

Ulice Sídliště Plešivec, Český Krumlov

2 500 000 Kč
Prodáno
Detail nemovitosti

Prodej bytu 2+1 58 m², Sídliště Plešivec, Český Krumlov-Plešivec

Ulice Sídliště Plešivec, Český Krumlov

3 690 000 Kč
Prodáno
Detail nemovitosti
Realizováno
Detail nemovitosti

Pronájem bytu 3+1 72 m², Sídliště Plešivec, Český Krumlov-Plešivec

Ulice Sídliště Plešivec, Český Krumlov

15 000 Kč