Zpět Zpět na výpis nemovitostí

Pronájem komerčních prostor sklady 345 m², Černá v Pošumaví,Český Krumlov,Jihočeský kraj

Černá v Pošumaví,Český Krumlov,Jihočeský kraj Zobrazit na mapě Zobrazit na mapě

Stav

Prodáno

Typ

Sklady

Obytná plocha

345 m2

Stav objektu

Velmi dobrý

Stavba

Cihlová

Typ domu

Přízemní

15 000 Kč

Pohlídejte si cenu této nemovitosti Pohlídejte si cenu této nemovitosti

Sledovat dostupnost

Upozornění

Pohlídejte si změny u této nemovitosti

Dáme vám vědět, ať už se změní cena nebo stav nemovitosti.

Upozornění

O vaše data je u nás postaráno. Přečtěte si naše podmínky pro ochranu os. údajů.

Kalkulačka financování Kalkulačka financování

Spočítejte si, na kolik vás vyjde hypotéka

Spočítejte si, na kolik vás vyjde hypotéka

Spočítejte si, na kolik vás vyjde hypotéka

Nějaký zajímavý podnadpis

Více o této nemovitosti

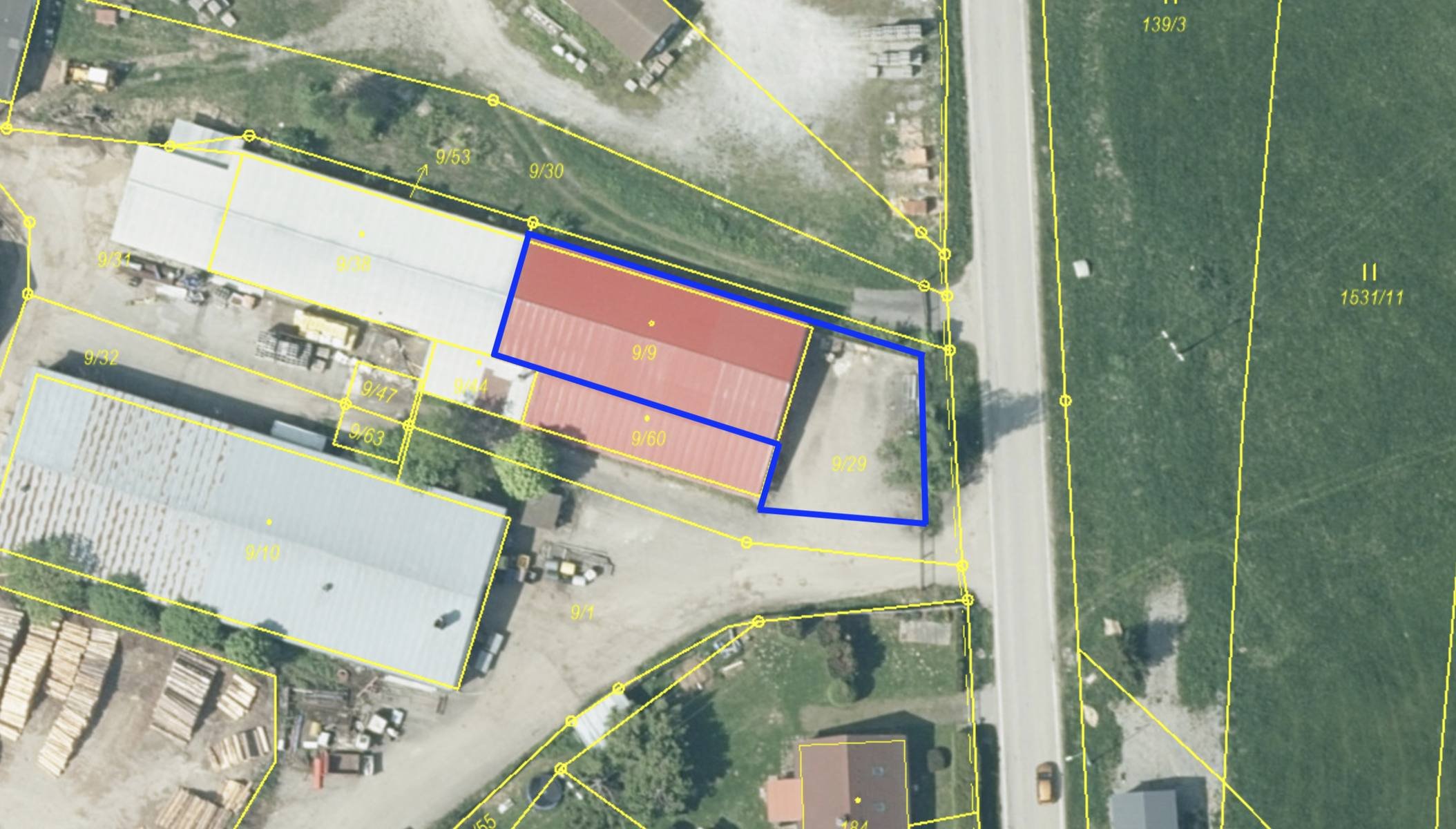
Nabízíme k pronájmu skladovací nebo výrobní halu na strategickém místě v Černé v Pošumaví. Vnitřní půdorys má plochu 345m2 (29,7x11,6). Vnitřní výška min. 4,2 m (až do vrcholu krovu 5,4m). Vstupní vrata mají šířku 380cm a výšku 405cm. Hala je umístěna v uzamykatelném areálu, u silnice z Černé na Frymburk. Hala je suchá, s novou střechou. Není zateplená. Podlaha pevná betonová. Je možnost připojení 220V/380V s vlastním měřením. Nájemné je 15.000,- měsíčně. Majitel požaduje vratnou kauci po dohodě. Hradí se 15.000,- rezervační poplatek. Pro více informací nás kontaktujte. Pro komunikaci uvádějte evidenční číslo zakázky N110974.

Informace o nemovitosti

Stav

Prodáno

Typ smlouvy

Pronájem

Typ nemovitosti

Komerční

Technické informace

Obytná plocha

345 m2

Příslušenství

Další informace

Typ

Sklady

Stav objektu

Velmi dobrý

Stavba

Cihlová

Typ domu

Přízemní

Rok kolaudace

1990

Navigovat k nemovitosti Navigovat k nemovitosti

Máte zájem o tuto nemovitost?

Kontaktujte mě a domluvme se na prohlídce

firmy.cz
4.5
Hodnocení
google.cz
Hodnocení
Chyba: You must enable Billing on the Google Cloud Project at https://console.cloud.google.com/project/_/billing/enable Learn more at https://developers.google.com/maps/gmp-get-started

Dejte nám vědět, s čím vám můžeme pomoct

Osobně s vámi projdeme každý detail

Preferovaný den prohlídky

Preferovaný čas prohlídky

Nejpozději do 24 hodin se ozveme nazpátek.

O vaše data je u nás postaráno. Přečtěte si naše podmínky pro ochranu os. údajů.

Děkujeme za váš zájem

Vaše informace jsme přijali a brzy se vám ozveme.

Váš požadavek byl úspěšně odeslán

Dejte nám vědět, s čím vám můžeme pomoct

Osobně s vámi projdeme každý detail

firmy.cz
4.5
Hodnocení
google.cz
Hodnocení
Chyba: You must enable Billing on the Google Cloud Project at https://console.cloud.google.com/project/_/billing/enable Learn more at https://developers.google.com/maps/gmp-get-started

Podobné nemovitosti v naší nabídce

Mohlo by vás také zaujmout

Prodáno
Detail nemovitosti

Pronájem komerčních prostor sklady 345 m², Černá v Pošumaví,Český Krumlov,Jihočeský kraj

Ulice Černá v Pošumaví,Český Krumlov,Jihočeský kraj

15 000 Kč